Traquer le soleil, en suivre sa course, sur un ou deux axes, au moyen d’un dispositif de conception simple, sans moteur, sans panne, très faiblement consommateur de l’énergie produite par le PV, tous terrains c’est à dire adaptable, sans terrassements à la conformation du terrain.
Profiter de panneaux photovoltaïques sans rebord (FULL SCREEN) avec le PROFIL CS multitâches pour une installation simplifiée et une production maximisée Se débarrasser du cadre et de son rebord Augmenter la surface exposée aux rayonnements Réduire a minima l’exposition aux poussières
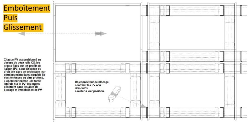
Supprimer les clamps (pinces ou crochets) dans le système de montage et de démontage du PV, en les remplaçant par un procédé d’insertion par emboîtement d’un profil de liaison (PL) dans un profil de support (CS) puis de glissement de l’un dans l’autre en les immobilisant au moyen d’une clé de verrouillage (Ergots).
La chaleur fatale (résiduelle) produite sous les PV représente 75% de l'énergie qui traverse le panneau. Elle est perdue et se dissipe dans l'atmosphère. La BOX permet de la récupérer, éventuellement de la stocker au moyen de matériaux à changement de phase (PCM), de la booster par un éjecteur pour séparer le fluide chaud du froid, puis utiliser le fluide chaud pour produire de l'électricité (ORC) et le froid dans l'industrie (congélation, stockage) ou pour concourir à la production d'électricité dans un autre procédé que l'ORC (MOSC : Moteur sans compression)
Le rendement des cellules et leurs arrangements sur le PV, comme la sélection de leurs composants, permet une amélioration continue de leur productivité mais elle est lente et coûteuse.
L’immense majorité des efforts financiers et techniques, en matière de recherche pour l’amélioration du rendement des PV, s’effectue sur les cellules photovoltaïques, les matières les composant et leurs interconnexions, les arrangements entre elles et leur disposition sur le panneau. Il s’agit de plusieurs milliards de $ engagés, au principal, par les fabricants de PV contre lesquels la France ne peut pas lutter.
En récupérant la chaleur avant qu'elle ne s'échappe dans l'atmosphère, la BOX contribue à réduire l'élévation mondiale de température et probablement à réduire les évènements climatiques extrêmes et nouveaux appelés "Coup de fouet climatique"
En canalisant l'air chaud, en le purgeant à intervalles réguliers avant que le niveau de température des cellules n'excède celui des recommandations des fabricants, en optimisant le circuit d'air frais entrant dans la BOX et en le dirigeant vers la sous-face du PV l'on améliore : La productivité directe du PV (+ 2.5 %), la durée de vie des cellules et donc, celle du PV.
En stockant l'air chaud au moyen d'un procédé de matériau à changement de phase (PCM) l'on régule la production d'électricité afin qu'elle soit parfaitement pilotable et en conformité avec la demande. La chaleur peut être conservée une semaine sous la charge d'une perte de 1 à 5 % selon les matériaux retenus (céramique, sable, H2, sels....)
En dynamisant le flux de chaleur issu de la PCM au moyen d'un éjecteur (Vortex) l'on dope le niveau de température de l'air chaud en sortie et l'on produit, parallèlement, de l'air glacé de type industriel
A tout moment, même sans stockage intermédiaire, l'on peut produire de l'électricité surnuméraire, qui s'ajoute à celle produite naturellement par le PV
Les PV-T sont exposés aux vents comme les PV, il est démontré que les pertes thermiques dues à l'effet du vent peuvent atteindre 70 %. La capture de l'air chaud sous le panneau par confinement libère le procédé de ce risque et 100 % des calories qui ne sont pas perdues par réflexion (Pertes optiques) ou par convection, conduction, rayonnement (Pertes thermiques) sont valorisées en électricité.
La production d'électricité surnuméraire étant localisée au pied des champs photovoltaïques, si son volume est excessif, l'on peut produire de l'H2, de l'O2, de l'ammoniaque, mais aussi capturer le CO2 existant. Ces sous-produits sont hautement verts et livrables dans un court rayon local sans subir le surcoût financier et écologique d'un transport complexe.
Pour un investissement supplémentaire modeste, la production électrique du PV s'accroît considérablement de telle manière que les coûts d'investissement et d'installations sont amortis plus rapidement.
Les coûts de maintenance des parcs photovoltaïque sont directement proportionnels aux risques de pannes identifiées (surtension ponctuelle, échauffement du PV, délamination, mouvements du parc sous l’effet des intempéries). Tous phénomènes en réduction massive grâce aux effets induits de la BOX
Le champ de PV présente une résistance aux intempéries accrue. Le bloc photovoltaïque est formé du système de supportage du PV et du PV lui-même, auxquels s’joutent la BOX et les dispositifs périphériques. La BOX rigidifie l’ensemble, augmente sa résistance mécanique (efforts à l’arrachement, à la pression, à la dépression), renforce sa résistance aux vents et à l’effet de la neige. Mis en œuvre sur un tracker la BOX en position rangement ou inversée protège le PV des chocs liés à la grêle.
La BOX est produite localement ou régionalement, par des ateliers locaux, qui peuvent intégrer sa production à leur activité normale, garantissant la présence d'un réseau national très réactif et la répartition de la charge de travail sans nécessité de transports coûteux, volumineux et peu écologiques.
C'est un grand avantage du système SUNeBOX que de pouvoir stocker directement la chaleur dans un procédé de type PCM car il rend l'énergie électrique pilotable lorsqu'elle est produite par des panneaux photovoltaïques.


Le tracker améliore la productivité des PV de 25 à 40 % selon qu'il est à un axe ou à deux axes. Comme pour tous les trackers par rapport aux PV fixes la productivité augmente de manière spectaculaire, mais avec le tracker SUNeBOX elle s’accroît de de 4 à 6 % en plus du fait de l’intensité de l’angle d’inclinaison qui peut être recherché.
L'absence de moteur : Réduit le coût de fabrication, les coûts sont allégés des moteurs, des transmissions, du câblage, des systèmes de transfert par tringlerie ; optimise et réduit les charges de maintenance, la maintenance se limite à la pompe de recirculation. qui est indépendante du procédé, elle se démonte en un instant pour être remplacée et révisée en atelier sans arrêt du système (même partiel) ; Diminue la masse du dispositif de 15 % ; Réduit la consommation électrique prélevée sur la production du PV, la consommation électrique des mécanismes est réduite d’un facteur 10 car les mouvements s’appuient sur le double effet de la force initiale engagée par la pompe puis de la force générée par le mouvement des masses liquides.
Les modules sur pieds sont indépendants les uns des autres. Chaque module est autonome dans son fonctionnement puisque le transfert de masse est indépendant. Aucune contrainte d’axe liant la chaîne de blocs n’existe. Les lignes épousent parfaitement la conformation du terrain sans terrassement
La grêle et les PV, dans le monde, c’est un budget de 3 M$/an que supportent les assureurs, ce qui rend les champs difficilement assurables. La grêle ne se contente pas de briser le verre, elle endommage, sournoisement, la partie active du PV, ses contacts électriques, ses liaisons, le laminage. Ranger, verticaliser ou retourner le PV est l’arme absolue contre les intempéries.
L'absence de cadre infère celle des rebords qui sont la source de la retenue, sur le PV des poussières et résidus drainés par les eaux de pluie ou de lavage. Pas de rebord = 1 nettoyage constant du PV = +10 à +15 % d'augmentation de la productivité du PV.
C'est le facteur de remplissage (Fill Factor) qui indique la surface effective de silicium en situation de transformer les photons incidents par l'effet photovoltaïque en électricité. Pour les mêmes dimensions de panneau la surface exposée augmente de 5.85 % La suppression des clamps augmente la surface posée (moins d'écart entre les panneaux) et une partie des ombres portées, la productivité augmente de 8.8 %
Supprimer le cadre et les clamps de fixation induit une réduction de la masse d'aluminium utilisée, donc un gain de poids de l'ordre de 10 %. Le transport, le conditionnement, le stockage, les coûts d'assurance, les risques d'accidents en toiture sont réduits.
Les systèmes classiques (PERC) luttent contre l'élévation de la température des cellules. L'écran FULL SCREEN participe à la réduction du coefficient d'élévation de température à hauteur de 15 %, notamment pour les PV n-type HjT de telle manière que sur 25 ans la perte d'efficacité se réduit de 50 % à 10 %.; La température des cellules s'élève moins, les sources de pannes par cette voie régressent.
Le même profil assure la liaison entre le PV et le support sur lequel le dispositif est posé, mais il est également porteur de tous les composants du procédé photovoltaïque et de ses accessoires ainsi que de ceux nécessaires à la BOX.
La conception du profil CS et du PV adossé à un profil de liaison permet d'éliminer l'utilisation des clamps (crochets) qui permettent actuellement la fixation du PV à son support. SUNeBOX permet d'assurer la liaison entre le PV et le support par simple clipsage du PV de liaison dans le PV CS et leur immobilisation par glissement de l'un dans l'autre de telle manière que les ergots positionnés sur le champ du profil de liaison s'insèrent dans les rainures du profil CS.
Il ne paraît pas raisonnable de se mêler à la guerre mondiale pour la production des cellules photovoltaïques, le marché est saturé, d'autres pays ont une avance considérable, mais, surtout, la part des cellules dans un PV est devenue très accessoire. Le combat est plus sûr et plus efficace sur tous les autres composants du PV
Le remplacement de 10 % des cadres en aluminium par des cadres en matériaux biosourcés entraîne une réduction de gaz à effet de serre de 20 mégatonnes de 20225 0 2030 soit l'équivalent de la production annuelle de 5 centrales à charbon Les émissions de gaz à effet de serre diminueraient de 80 % en passant de 24.2 kg de CO2/kg à 3.7 kg de CO2/kg
Le PID est le phénomène qui se produit dans les PV lorsqu’une migration d'ions s’engage sous l'effet d'une contrainte de haute tension entre les matériaux d'encapsulation. Du fait de la faible conductivité des matériaux composites la dégradation due à ce phénomène est réduite, la durée de vie des PV est allongée et leur efficacité accentuée
La faible conductivité des matériaux composites et l’absence de fuite de courant conduit à l'élimination de la mise à la terre Doit être mis à la terre un module avec des parties conductrices accessibles qui forment l'armature du périmètre ou le système de montage, ou qui présente une surface conductrice supérieure à 10 cm² en contact avec lui. accessible après l'installation doit avoir des dispositions pour la mise à la terre.
C’est le défi des cadres en aluminium qui est un métal sujet à la corrosion. Une exposition prolongée aux embruns salins ou aux polluants (ammoniac, acide acétique, NAOH) dans les environnements côtiers, industriels ou à forte humidité entraîne une dégradation progressive de sa surface. Les matériaux composites sont intrinsèquement résistants i. Ils ne rouillent pas et ne se dégradent pas, même en conditions de forte salinité ; ii. Ils préservent l’intégrité structurelle du PV, garantissant une production d’énergie constante sur plusieurs décennies ; iii. Ils réduisent les coûts de maintenance et le coût total de possession.
Les matériaux composites présentent une densité moitié moindre que celle de l’aluminium
Outre une bonne résistance à la chaleur (~185°C) Les pièces conservent leur teinte d’origine. Les cadres composites, dont la conductivité thermique est inférieure et du fait de leurs propriétés isolantes , ne chauffent pas les modules comme le font les cadres en aluminium et ne participent donc pas de la même manière à l’élevation de T°C des modules. Ils contribuent ainsi à l’amélioration de la production d'énergie et participent aux performances du PV, notamment lorsqu’il est accouplé à une BOX, à haute température
Au moins égale à celle des PV garantis 30 ans
Les PV sont exposés à des vents violents et des charges de neige accrues. Les modules en aluminium résistent à des charges de vent de 2400 Pa et à des charges de neige de 5400 Pa, contre respectivement 3600 et 7000 Pa pour les modules à base de matériaux composites.
Les composites assurent un rebondissement de 100 % du cadre après relâchement de la charge Le coefficient thermique du matériau composite étant proche de celui du verre, les modules à cadre composite peuvent résister aux risques liés aux fortes variations de flexion a) A basse température notamment pour la relaxation des contraintes lors de l'installation des blocs et des boulons b) A l’occasion de cycles prolongés de températures élevées et basses c) Pour le risque d'éclatement du verre des modules à cadre en aluminium, car ceux-ci peuvent se rétracter dans des environnements à basse température prolongés. Les modules à cadre composite reprennent leur forme et leur rectitude d'origine après relâchement de la charge, alors que les modules à cadre en aluminium conservent, au moins en partie, leur courbure, même si leur vitre avant (et arrière) ne se brise pas.
 
  
  
  
  
  
  
  
  
  
 